︎
Anqi Liu
Info.
The Guard Station, 2021
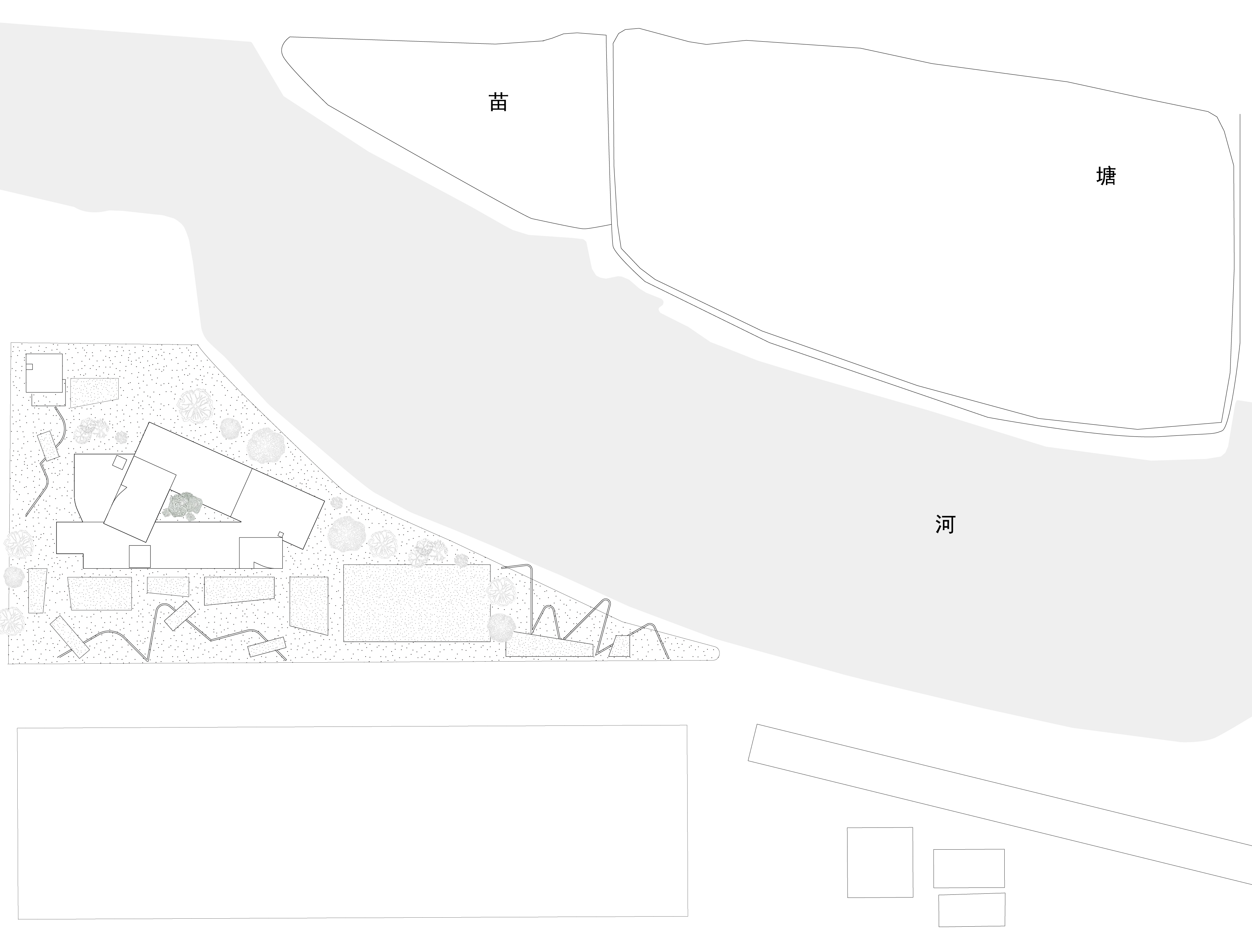
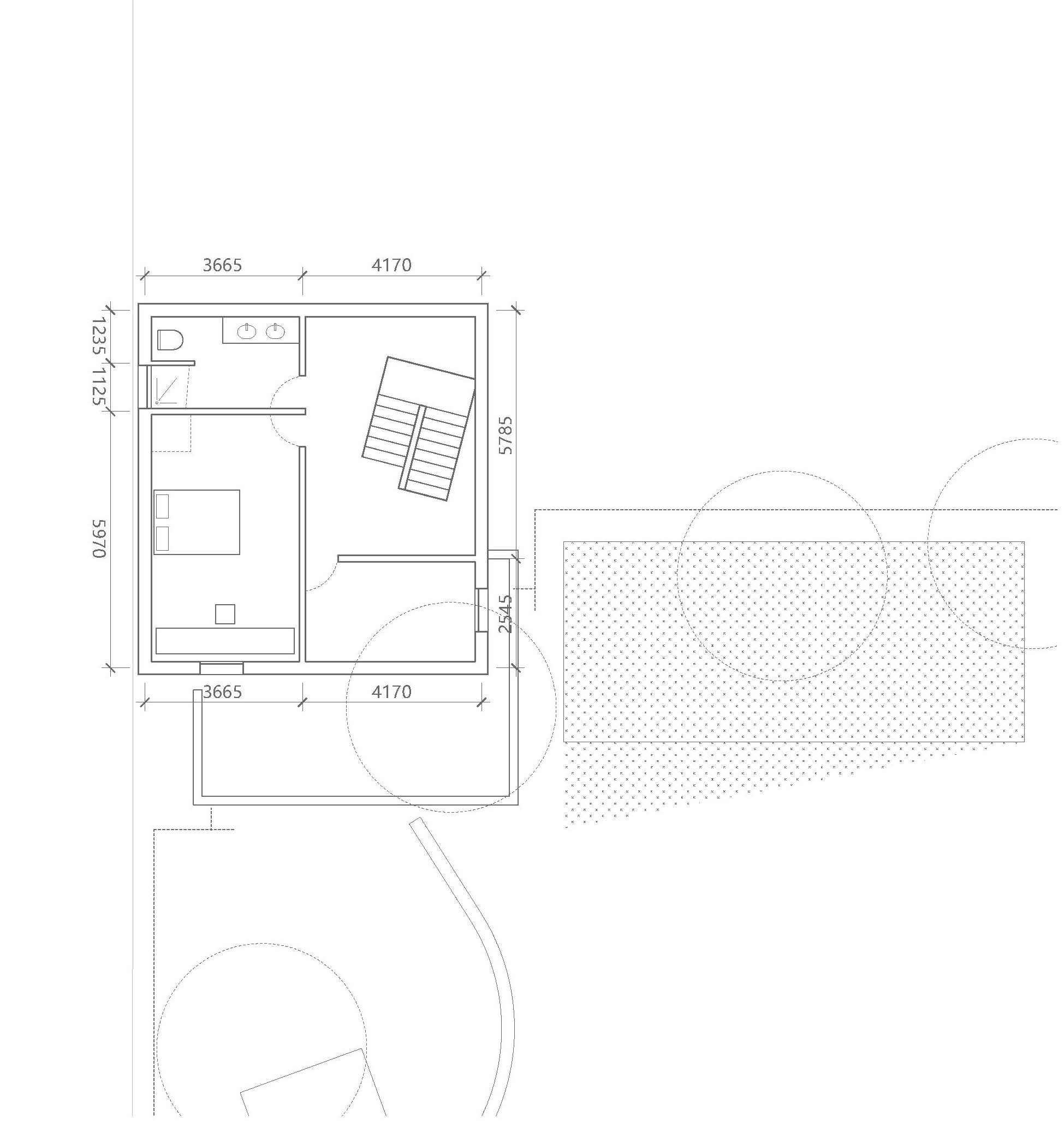
Design of the guard station which is part of the New Journey headquarter located in Jiangsu, China.
Team: More Architecture
Projects:
01 →
O
rganic Living
02 →
Rechoregraphing Spaces
03 →
Reimagine Mayfair
04 →
Mayfair Art Society
05 →
ACDC
06
→
The Guard Station
07 →
Nanshufang Exhibition
08 →
Nanshufang Retail Store
09 →
Michael Lin & Heidi Voet : Doublespeak
10
→
Alvin Ong : Private Pleasures
11 →
A Supercomposite
12 →
Oculus
13 →
Waiting Bricolage
14 →
Fiction and Reality
15 →
Celand